
Проект представляет собой альбом чертежей выполненных в программе AutoCAD для дизайн-проекта санузла загородного дома в Индонезии. Содержит в себе планы размещения оборудования и детали отделки, а также визуализации интерьера.

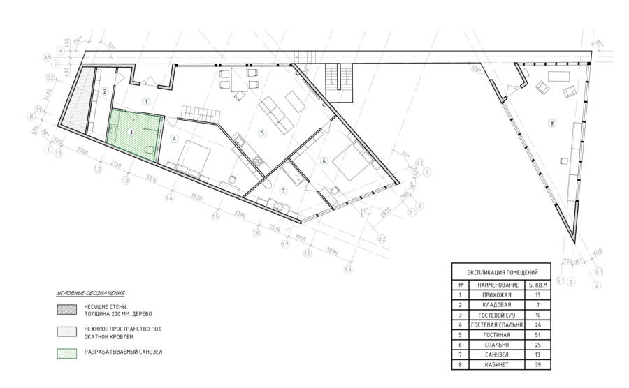
Расположение санузла на этаже
Основной акцент был сделан на расположении настенного и напольного покрытия, а также схеме выводов коммуникаций.
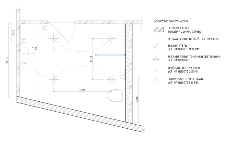
План электрики, план тёплого пола, план систем водоснабжения
Развёртки стен
Визуализации