Original size 2474x3500

Дизайн — проект креативного пространства для саунд-дизайнеров

PROTECT STATUS: not protected

Мой проект представляет собой профессиональный коворкинг, созданный для сообщества саунд-дизайнеров, композиторов электронной музыки и звуковых художников. Это место с специализированной инфраструктурой, уникальным оборудованием и curated-средой для работы, экспериментов, образования и живого обмена опытом.

0

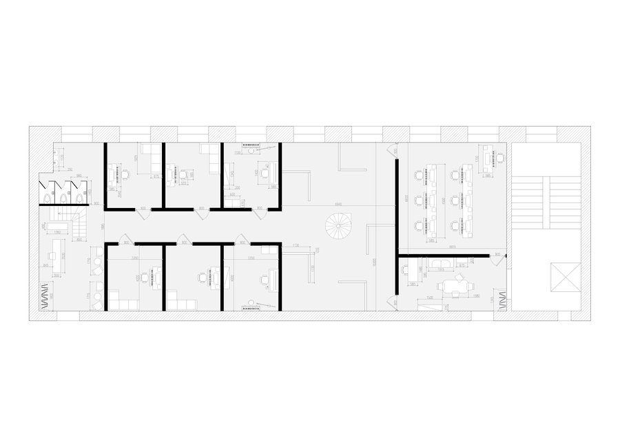
план креативного кластера с мебелью

0

план зонирования креативного кластера

big
Original size 3378x2375

визуализация входной зоны

0

визуализация второго этажа/кофейня

Original size 3378x2375

визуализация мини студии для работы со звуком

Original size 3378x2375

визуализация фоли комнаты для записи собственных звуков

Original size 3378x2375

визуализация учебного класса

Original size 3378x2375

визуализации//креативный кластер для саунд-дизайнеров

We use cookies to improve the operation of the website and to enhance its usability. More detailed information on the use of cookies can be fo...
Show more